TỔNG QUAN DỰ ÁN A&T SAIGON RIVERSIDE
| Tên dự án | A&T Saigon Riverside |
| Chủ đầu tư | Công ty Cổ Phần Đầu Tư Phát triển Đô thị A&T Thuận An |
| Vị trí dự án | Phường Bình Hòa, TP.HCM (sau sáp nhập 1/7/2025) |
| Đơn vị phát triển | DXMD Việt Nam |
| Quy mô | 2 Block – 40 Tầng cao – 08 Tầng tiện ích và 04 Tầng giữ xe |
| Tổng diện tích | 7393.6 m2 |
| Diện tích căn hộ | 42 m² – 97 m² |
| Tiện ích | Trung tâm thương mại, nhà hàng, cafe, công viên, gym, spa, nhà trẻ, khu vui chơi,… |
| Ngân hàng hỗ trợ | Hỗ trợ 80% giá trị & ân hạn gốc 5 năm và lãi suất 0% đến khi nhận nhà |
| Pháp lý | Sổ hồng riêng – sở hữu lâu dài |

VỊ TRÍ DỰ ÁN A&T SAIGON RIVERSIDE
A&T SaiGon Riverside sở hữu vị trí vàng ngay mặt tiền đường ven sông Sài Gòn, thuộc phường Vĩnh Phú – cửa ngõ chiến lược kết nối trực tiếp với TP.HCM. Dự án tọa lạc liền kề Quốc lộ 13 – tuyến giao thông huyết mạch đang được mở rộng lên 8 làn xe, mang lại lợi thế vượt trội về hạ tầng di chuyển, giúp cư dân dễ dàng kết nối nhanh chóng và thuận tiện đến mọi khu vực trọng điểm.
Chỉ với 2 phút di chuyển, cư dân có thể tiếp cận trọn vẹn hệ thống tiện ích hành chính – giáo dục – y tế – thương mại như UBND Thuận An, các trường học liên cấp, bệnh viện, ngân hàng, nhà hàng tiệc cưới, cửa hàng tiện lợi và nhiều dịch vụ cao cấp khác.
Khoảng 8 phút, cư dân có thể đến các khu công nghiệp lớn như VSIP, Việt Hương, hoặc tận hưởng không gian mua sắm sầm uất tại Lotte Mart và Aeon Mall.
Và chỉ 10 phút, bạn đã có thể trải nghiệm những tiện ích đẳng cấp tại sân Golf Sông Bé hoặc Bệnh viện Becamex – những biểu tượng của chất lượng sống chuẩn mực trong khu vực.

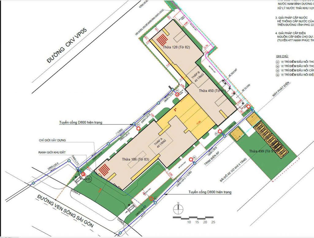
MẶT BẰNG DỰ ÁN A&T SAIGON RIVERSIDE
Dự án gồm hai tòa tháp cao 40 tầng mang phong cách kiến trúc hiện đại, được bố trí khoa học nhằm tối ưu hóa tầm nhìn, ánh sáng tự nhiên và công năng sử dụng. Tầng hầm rộng rãi đáp ứng đầy đủ nhu cầu đỗ xe, trong khi hệ thống tiện ích nội khu được sắp xếp hợp lý từ tầng trệt đến tầng cao nhất, tạo nên trải nghiệm sống khác biệt và đẳng cấp.
Cấu trúc tầng nổi bật:
Tầng 1: 12 căn shophouse, trường mầm non, sảnh đón sang trọng, công viên và khu sinh hoạt cộng đồng.
Tầng 2 – 3: Bãi đậu xe và không gian trường mầm non.
Tầng 4: Hồ bơi tràn bờ, vườn gia đình, phòng gym, phòng golf 3D.
Tầng 5 – 19 & 21 – 39: Khu căn hộ ở.
Tầng 21: Tầng lánh nạn kết hợp khu tiện ích.
Tầng 40: Không gian tiện ích cao cấp với tầm nhìn toàn cảnh sông Sài Gòn.
Được quy hoạch trên quy mô gồm 2 block – 40 tầng nổi và 2 tầng hầm, A&T Saigon Riverside kiến tạo nên một khu căn hộ cao cấp mang hơi thở hiện đại nhưng vẫn giữ được sự gắn kết hài hòa với thiên nhiên.
Loại hình căn hộ đa dạng, đáp ứng linh hoạt nhiều nhu cầu và khả năng tài chính:
1 phòng ngủ +: 42,3 – 46,9 m²
2 phòng ngủ – 2WC: 63,2 m²
2 phòng ngủ – 2WC (diện tích lớn): 73,5 – 78,1 m²
3 phòng ngủ: 91,3 – 95,3 m²



TIỆN ÍCH DỰ ÁN A&T SAIGON RIVERSIDE
Dự án A&T Saigon Riverside được quy hoạch với 6 tầng tiện ích đẳng cấp, phân bổ tinh tế tại các khối tháp, mang đến cho cư dân hệ sinh thái sống hoàn chỉnh và khác biệt. Mỗi không gian đều được chăm chút tỉ mỉ nhằm tạo nên trải nghiệm sống chuẩn resort giữa lòng đô thị – nơi cư dân tận hưởng trọn vẹn tiện nghi, thư giãn và tái tạo năng lượng mỗi ngày.
Từ khu thương mại sầm uất đến Clubhouse riêng biệt dành cho cộng đồng cư dân, hay hồ bơi tràn bờ mang phong cách nghỉ dưỡng – tất cả được kết nối hài hòa trong một tổng thể hiện đại và sang trọng.
Đặc biệt, Sky Garden và Sky Bridge là điểm nhấn kiến trúc độc đáo – những khu vườn xanh trên cao cho phép cư dân tản bộ, ngắm hoàng hôn, chiêm ngưỡng toàn cảnh thành phố và sông Sài Gòn trong không gian yên bình, lãng mạn.
Được thiết kế theo mô hình compound khép kín, A&T Saigon Riverside không chỉ đảm bảo an ninh – riêng tư tuyệt đối mà còn mang đến chuỗi tiện ích toàn diện phục vụ mọi lứa tuổi và phong cách sống:
Trung tâm thương mại sôi động, quy tụ nhiều thương hiệu cao cấp.
Sảnh đón sang trọng, khẳng định đẳng cấp của cộng đồng cư dân tinh hoa.
Công viên cây xanh mát lành, mang hơi thở thiên nhiên đến từng góc không gian.
Hồ bơi tràn bờ chuẩn resort, nơi thư giãn lý tưởng sau mỗi ngày dài.
Thư viện yên tĩnh, không gian đọc sách và học tập đầy cảm hứng.
Chuỗi nhà hàng & café sang trọng, đa dạng phong cách ẩm thực Á – Âu.
Phòng gym hiện đại, trang bị máy móc tiên tiến đạt tiêu chuẩn quốc tế.
Khu spa chuyên biệt, mang đến những phút giây thư thái và chăm sóc sức khỏe trọn vẹn.





Chung cư A&T Riverside Thuận An City sở hữu vị trí đắc địa ngay trung tâm thành phố Thuận An, tọa lạc trên mặt tiền Đại lộ Bình Dương – tuyến đường huyết mạch kết nối trực tiếp với TP.HCM và các khu vực kinh tế trọng điểm. Nhờ lợi thế này, dự án không chỉ thuận tiện di chuyển mà còn thừa hưởng trọn vẹn hệ thống tiện ích ngoại khu cao cấp bao quanh như siêu thị, bệnh viện quốc tế, trường học, trung tâm thương mại và sân golf đẳng cấp.
Từ A&T Riverside, cư dân dễ dàng tiếp cận hàng loạt tiện ích chỉ trong vài phút di chuyển:
2 – 5 phút: Tiếp cận nhanh các tiện ích thiết yếu như Siêu thị Co.op Mart, KCN VSIP, Bệnh viện Quốc tế Becamex, Lotte Mart, Trường Mầm non Hoa Cúc, Trường Tiểu học Phan Châu Trinh, THPT Nguyễn Trãi, Cao đẳng Việt Nam – Thuận An, Chợ Lái Thiêu…
5 – 7 phút: Di chuyển thuận tiện đến AEON Mall, Siêu thị Metro, Sân golf Sông Bé, Bệnh viện Quốc tế Columbia Asia, Trường Trung cấp Kinh tế & Tài chính Bình Dương, Chùa Thiên Phước, Nhà thờ Lái Thiêu, Ngân hàng Việt Á, Ngân hàng Quân Đội, Siêu thị Điện máy Xanh, Trường THCS Phú Long…
8 phút: Kết nối nhanh đến Cao đẳng Kinh tế – Công nghệ, Bệnh viện Thủ Đức, Đại học Kinh tế – Kỹ thuật Bình Dương, Kitty Land, Sân vận động tỉnh Bình Dương, Big C…
15 phút: Dễ dàng di chuyển đến Làng Đại học TP.HCM, Sân bay Tân Sơn Nhất và Bến xe Miền Đông – những đầu mối giao thông và giáo dục quan trọng của khu vực phía Nam.

